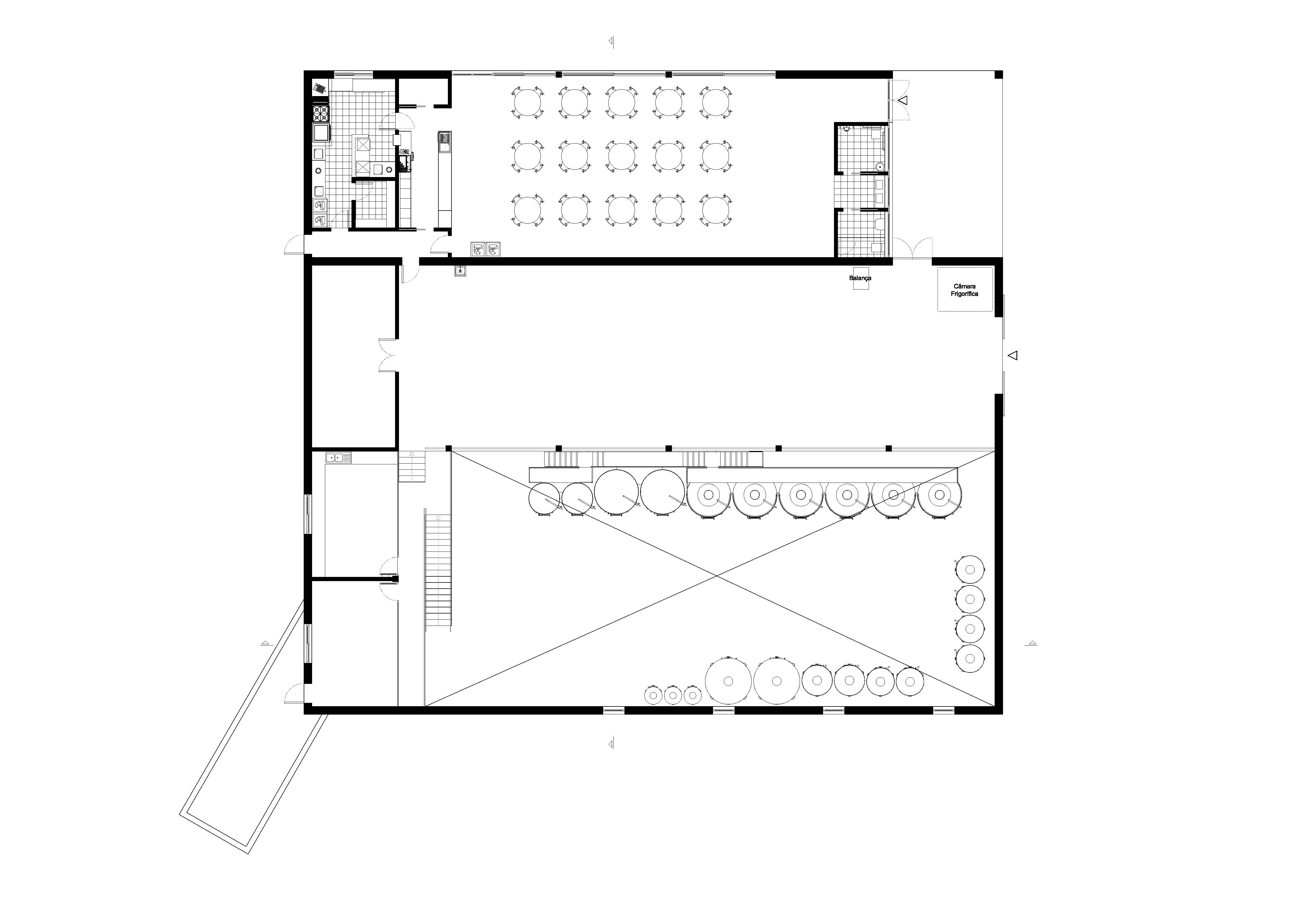
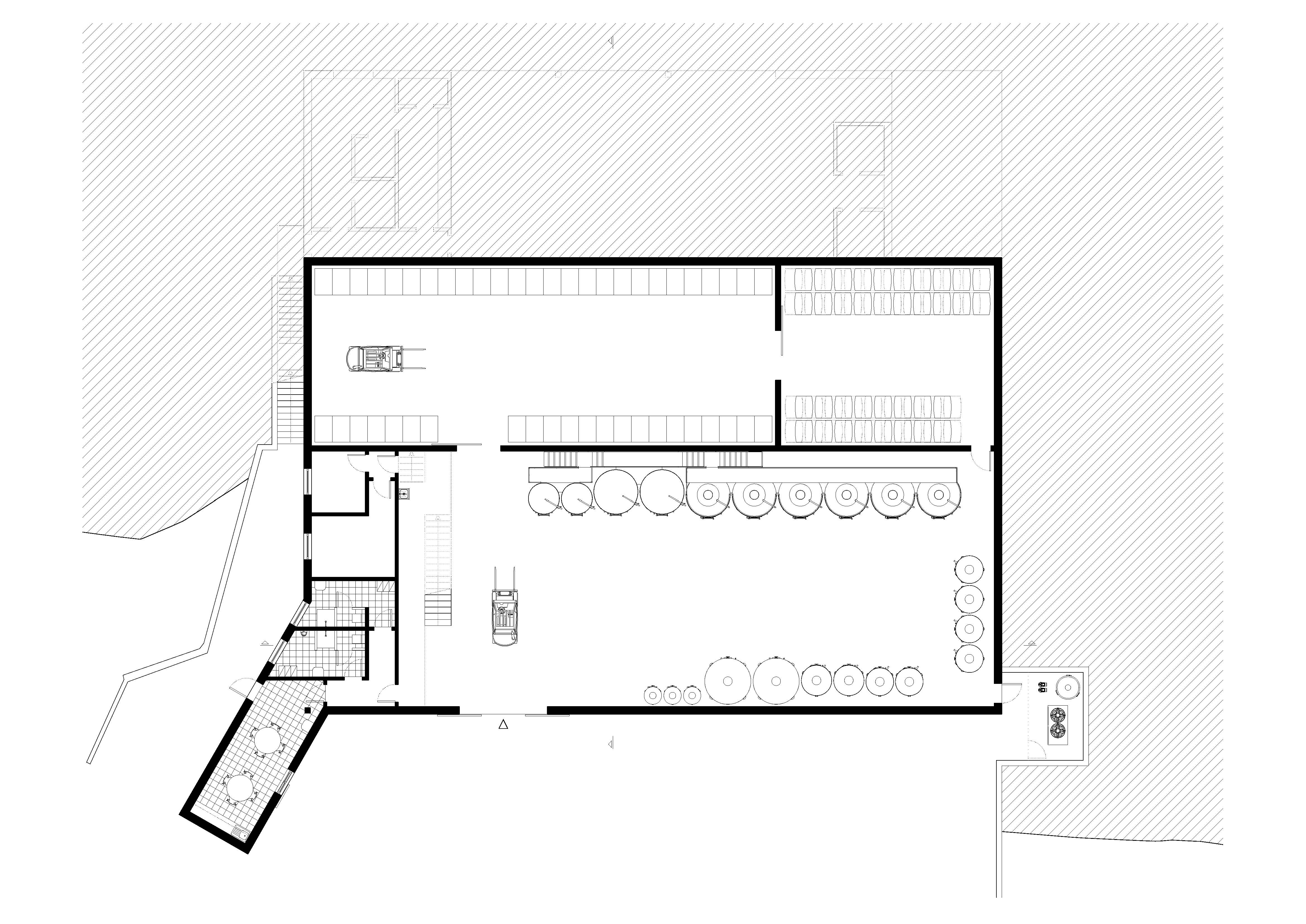
Adega Silves

Tipo de obra | Construção de Adega de Vinhos e Sala de Provas

Localização | Silves

Projeto | 2016

Fase | Licenciamento

área de construção | 1304 m2

arquitetura | Tiago Antão

Colaboração | Fábio Antão