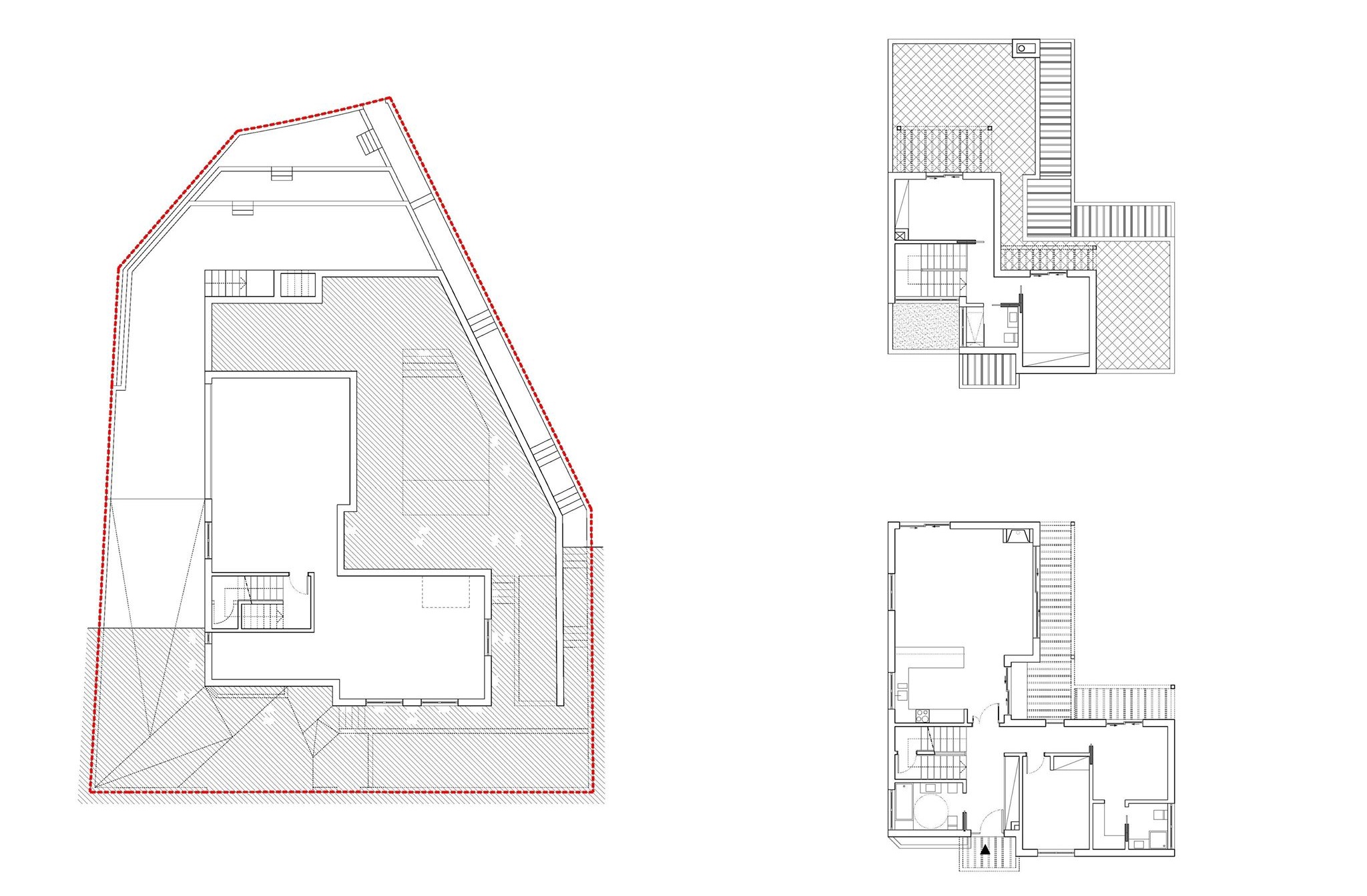
Moradia Alcantarilha

Tipo de obra | Construção de Habitação Unifamiliar

Localização | Alcantarilha, Silves

Projeto | 2019

Fase | Licenciamento

área de construção | 175 m2