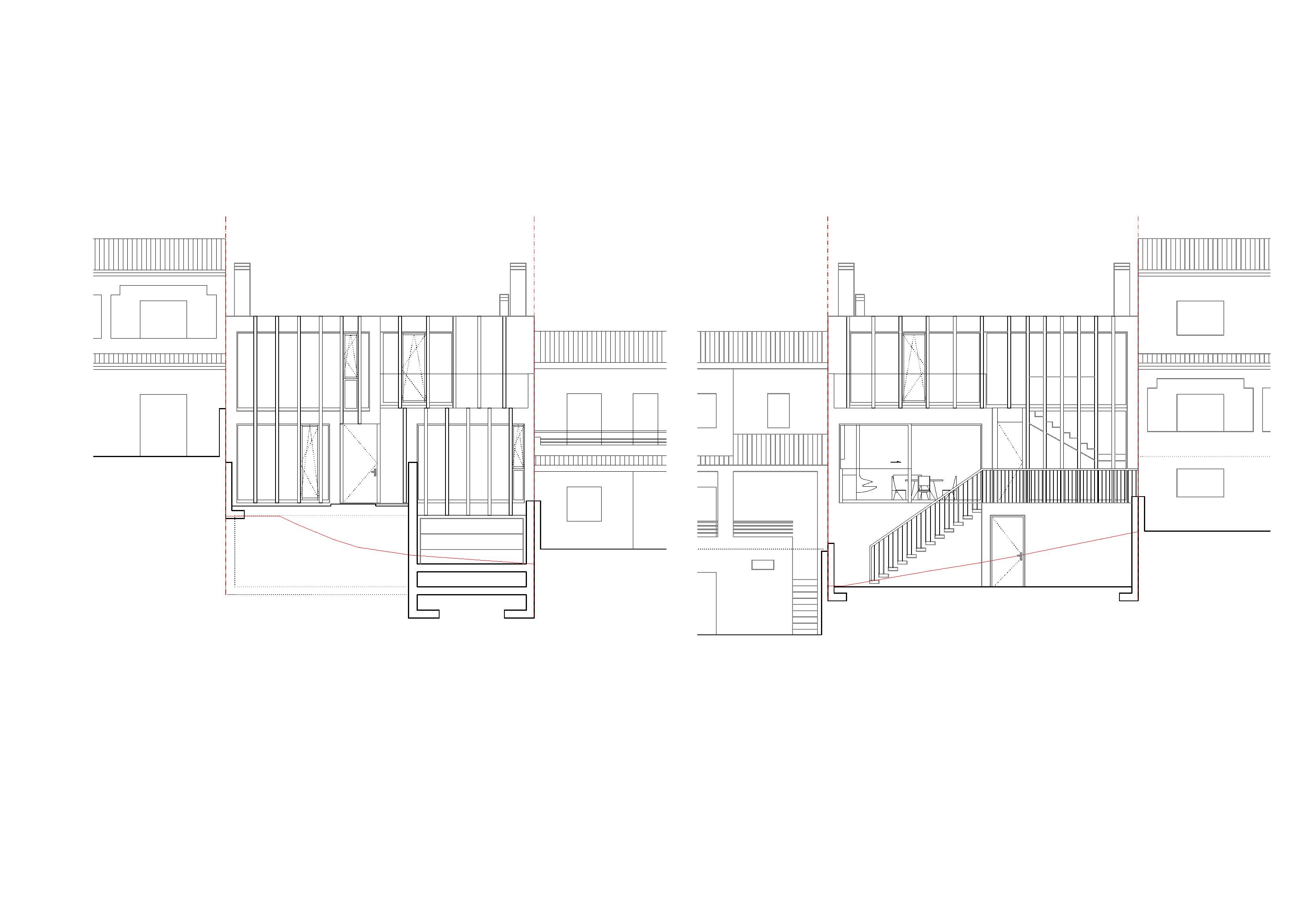
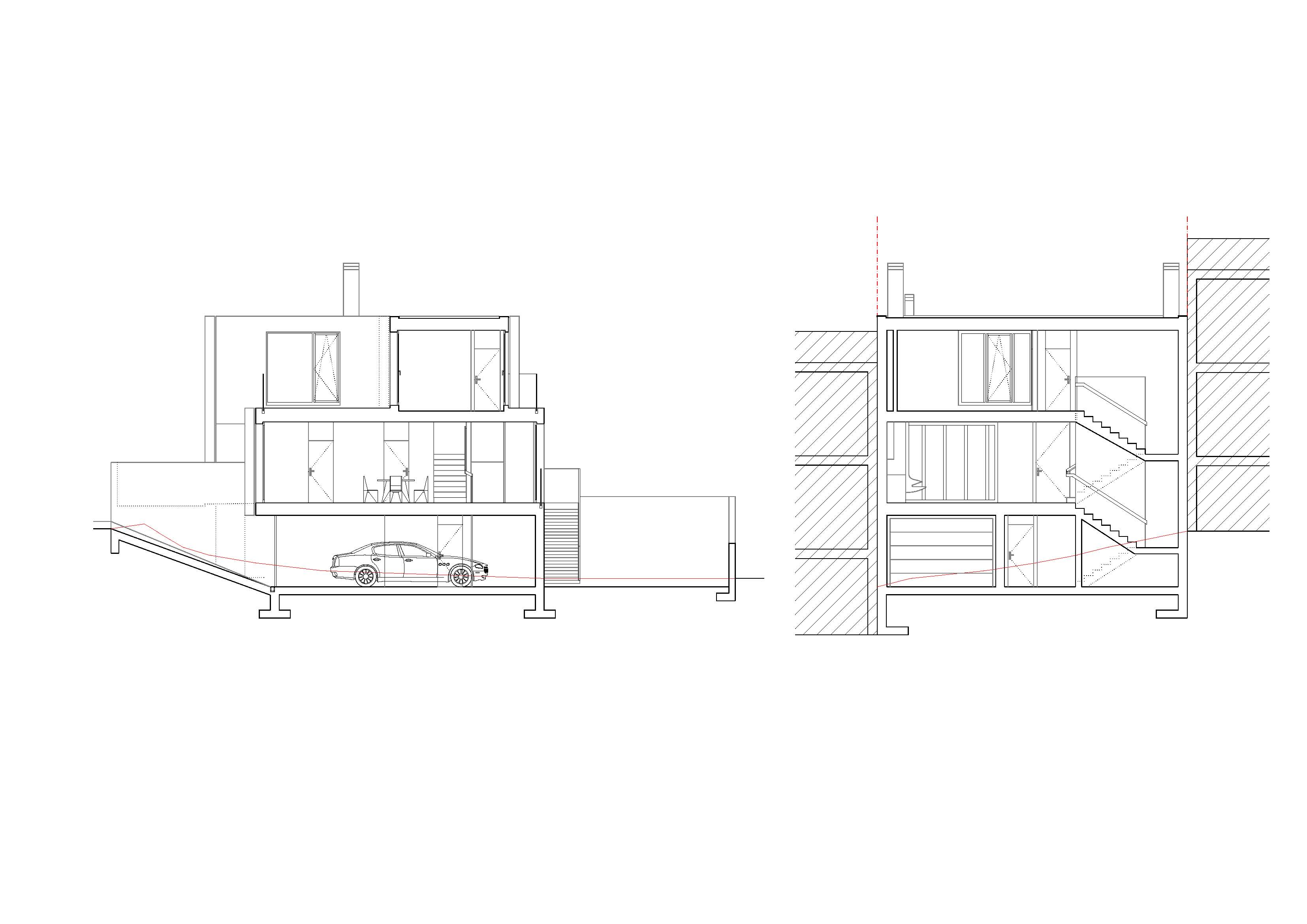
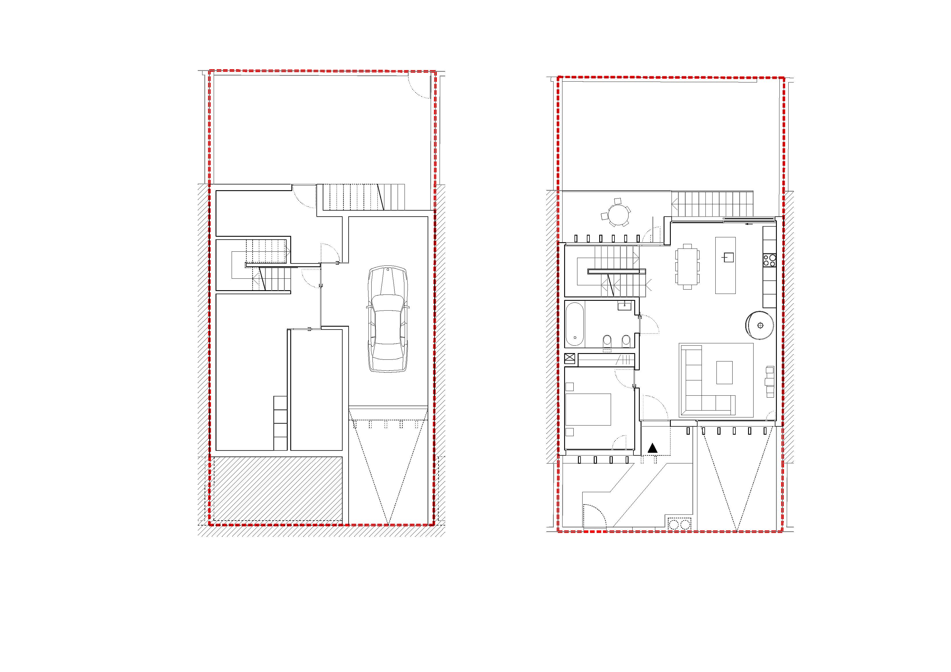
Moradia Barão de São João

Tipo de obra | Construção de Habitação Unifamiliar

Localização | Barão de São João, Lagos

Projeto | 2018

Fase | Licenciamento

área de construção | 160 m2

arquitetura | Tiago Antão, Ricardo Rodrigues

3D e Render | Ricardo Rodrigues