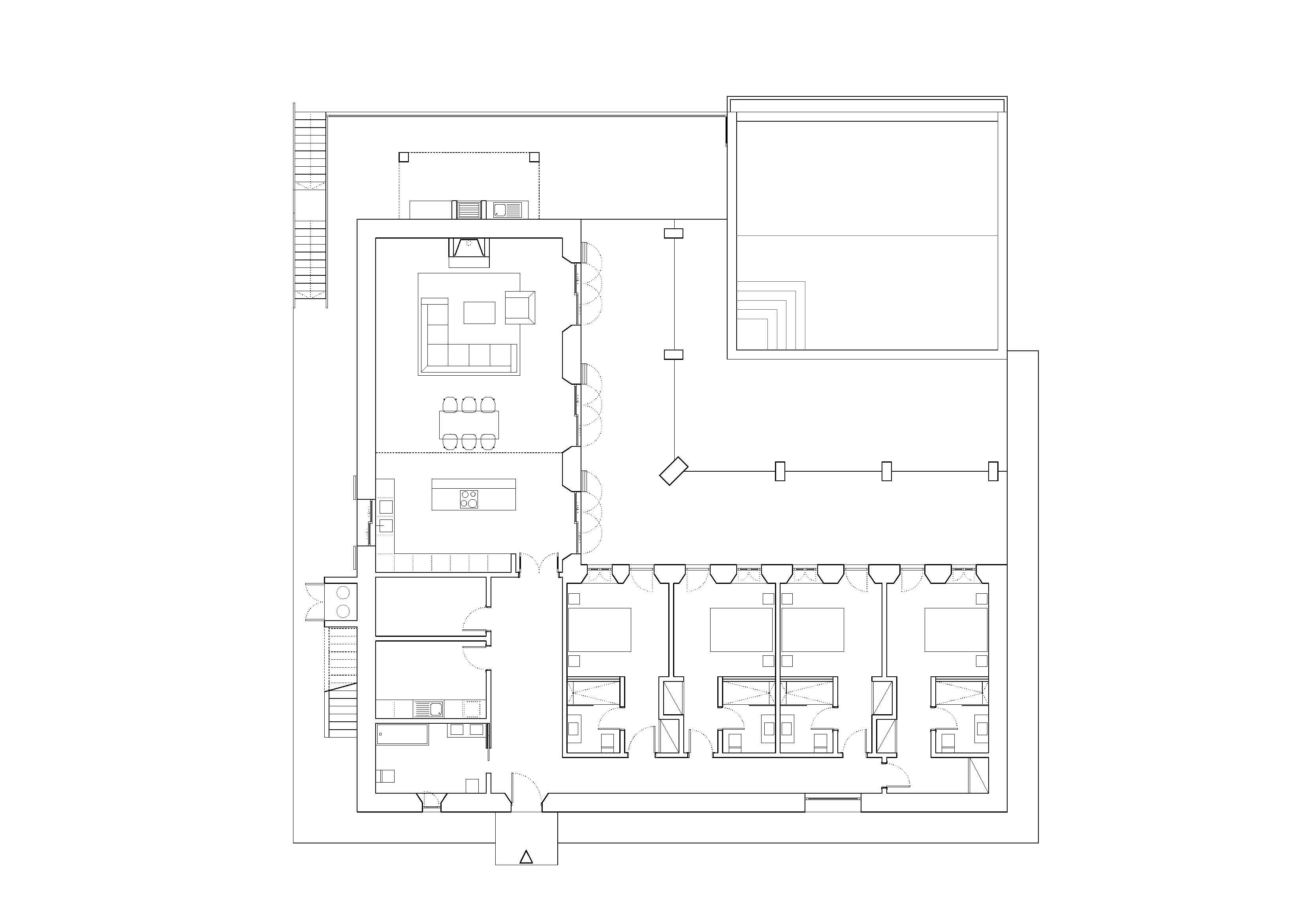
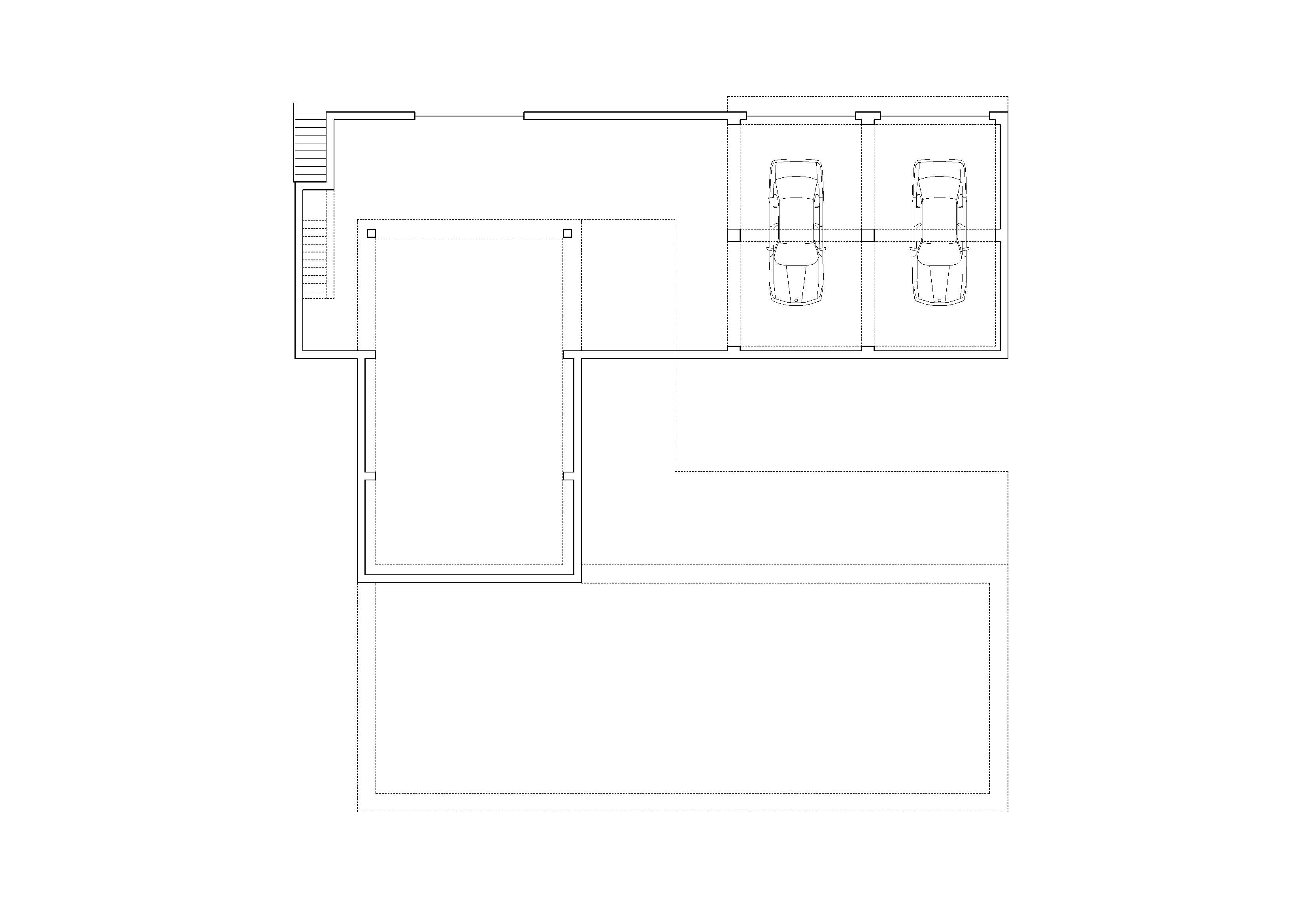
Moradia S. Marcos da Serra 1

Tipo de obra | Construção de Habitação Unifamiliar

Localização | São Marcos da Serra, Silves

Projeto | 2018

Fase | Licenciamento

área de construção | 550 m2

arquitetura | Tiago Antão